REQUEST A TOUR If you would like to see this home without being there in person, select the "Virtual Tour" option and your agent will contact you to discuss available opportunities.
In-PersonVirtual Tour

Listed by Todd Riley • Equity Union
$ 1,600,000
Est. payment /mo
Active
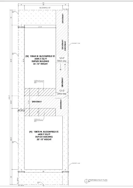
10868 Bloomfield ST Toluca Lake, CA 91602
8,484 Sqft Lot
UPDATED:
Key Details
Property Type Vacant Land
Sub Type Other Residential Land
Listing Status Active
Purchase Type For Sale
MLS Listing ID CNSR23015119
Lot Size 8,484 Sqft
Property Sub-Type Other Residential Land
Source CRISNet
Property Description
We are pleased to introduce ten eight six eight and ten eight seven zero Bloomfield a 4 Unit Townhouse Development in the much sought after area of Toluca Lake. These spacious Townhouses have 3 Bedroom and Office or 4 Bedrooms, 4 Baths, and have approximately 2100 to 2250 square feet. This offering is Ready to Issue (RTI) for 4 Larger Townhouse Units in 2 Buildings with Attached Private Parking Spaces for two cars per Townhouse. This is a perfect opportunity for a developer that wants to start building immediately. With abundant storage space on the first floor of each building, there is possible further development of additional ADUs. This lot is Zoned R-3 with almost 8400 square feet. This location has a walk score of 77 with shops and restaurants nearby as well as the Downtown area of Toluca Lake. Easy access to Freeways including the 101, 134 and 170. This location is also situated between 2 Los Angeles Metro Stations North Hollywood as well as Universal/Studio City.
Location
State CA
County Los Angeles
Area Tul - Toluca Lake
Zoning LW
Exterior
View Local/Neighborhood
Building
Water District - Public
Others
Tax ID 2423020001
Special Listing Condition Not Applicable

© 2025 MLSListings Inc. All rights reserved.