REQUEST A TOUR If you would like to see this home without being there in person, select the "Virtual Tour" option and your agent will contact you to discuss available opportunities.
In-PersonVirtual Tour

Listed by NYLA STERLING • TRI POINTE HOMES HOLDINGS, INC.
$ 496,826
Est. payment /mo
Pending
5188 Douglas AVE Banning, CA 92220
3 Beds
2.5 Baths
1,957 SqFt
UPDATED:
Key Details
Property Type Single Family Home
Sub Type Single Family Home
Listing Status Pending
Purchase Type For Sale
Square Footage 1,957 sqft
Price per Sqft $253
MLS Listing ID CRIV25251250
Bedrooms 3
Full Baths 2
Half Baths 1
HOA Fees $202/mo
Lot Size 4,080 Sqft
Property Sub-Type Single Family Home
Source California Regional MLS
Property Description
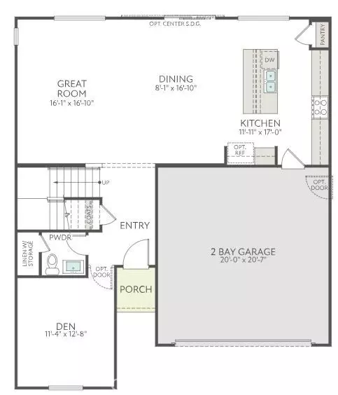
Ivy at Ciena Community is the perfect blend of versatility and style! The front Den offers endless possibilities, whether you need a productive office or a creative crafting space. The luxurious Primary Suite features a spacious walk-in closet and a sleek dual vanity for ultimate convenience. The true highlight, however, is the heart of the home - an expansive, expertly designed Kitchen with a massive island, perfect for entertaining. It seamlessly flows into the Dining and Great Room, filled with natural light from numerous windows and sliding door that opens to the outdoors. This home has many upgrades including cabinets, electrical, flooring, and more. Don't miss your chance to own this dream home - it's set to be ready by March 2026!
Location
State CA
County Riverside
Area 263 - Banning/Beaumont/Cherry Valley
Interior
Cooling Central AC
Fireplaces Type None
Laundry In Laundry Room, Other
Exterior
Garage Spaces 2.0
Pool Community Facility, Spa - Community Facility
View None
Building
Water District - Public
Others
Tax ID 408731048
Special Listing Condition Not Applicable

© 2025 MLSListings Inc. All rights reserved.



